ВЫПОЛНЯЕМ РАБОТЫ ПО ВСЕЙ РОСCИИ и НОВЫЕ РЕГИОНЫ РФ

8 (495) 796 47 90 | МОСКВА
8 (812) 987 26 45 | САНКТ-ПЕТЕРБУРГ
8 (904) 554 29 36 | САНКТ-ПЕТЕРБУРГ

Чертежи: Раздвижные стены WINAB 80 ME

РАЗДВИЖНЫЕ СТЕНЫ 80 ME

Толщина панели, (мм)

85мм — 100мм (зависит от звукоизоляции)

Вес, (кг/м2)

26-63кг (зависит от звукоизоляции)

Ширина панели, (мм)

400мм — минимальная ширина, 1250мм — максимальная ширина

Высота панели, (мм)

7200мм — максимальная высота

Цвет и отделка

Ламинат (Egger– Германия, Formica– Англия), шпон, покраска в любой цвет по каталогу RAL, пробковое дерево, магнитно-маркерная доска.

Звукоизоляция, (Дб.)

41-53 Дб

Парковки трансформируемых стен:

Z1. Очень удобная симметричная парковка трансформируемой стены. Каждый сегмент трансформируемой стены снабжен двухроликовыми подвесами.
Z2. Отличие от парковки Z1 в наибольшем расстоянии между роликами. Несимметричная парковка складной стены. Каждый сегмент складной стены снабжен двухроликовым подвесом.
Е1. Простая и очень удобная в эксплуатации парковка раздвижной стены. Симметричная парковка. Каждый сегмент снабжен однороликовым подвесом. Данную парковку рекомендуется применять при высоте трансформируемой стены не более 3000мм.
K1. Маленькая и достаточно компактная парковка для складной стены ну или как ее еще называют трансформируемая перегородка. Каждый сегмент трансформируемой стены снабжен двухроликовыми подвесами.

K3. Сегменты трансформируемой стены скрыты за колонной. Каждый сегмент трансформируемой перегородки снабжен двухроликовыми подвесами.

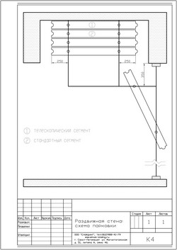
K4. На чертеже видно, как сегменты складной стены уводятся в нишу. Данная парковка для трансформируемой перегородки является скрытой, так как в нишу убираются все сегменты раздвижной перегородки. Каждый сегмент трансформируемой звукоизоляционной перегородки снабжен двухроликовыми подвесами.

K5. Сегменты раздвижной стены скрыты за колонной и паркуются в два ряда. Каждый сегмент трансформируемой перегородки снабжен двухроликовыми подвесами.

K6. Сегменты трансформируемой стены паркуются в нишу, поворачиваясь на 90°. Данная парковка раздвижной перегородки является скрытой, так как в нишу убираются все сегменты, идентично парковке К4. Каждый сегмент раздвижной перегородки снабжен двухроликовыми подвесами.